RealBrokers - Investment & Real Estate
(+30) 213 0227019
info@realbrokers.gr
EN
GREEK
ENGLISH
Toggle navigation
GR
|
EN
Buy 
Properties
Commercial
Land
Other properties
Rent 
Properties
Commercial
Land
Other properties
Ask for a Property
Property Assignment
About Us
Services
Information
Contact Us
Tavros (Mosxato-Tavros)
|
|
Small Industrial Area
|
330,000€
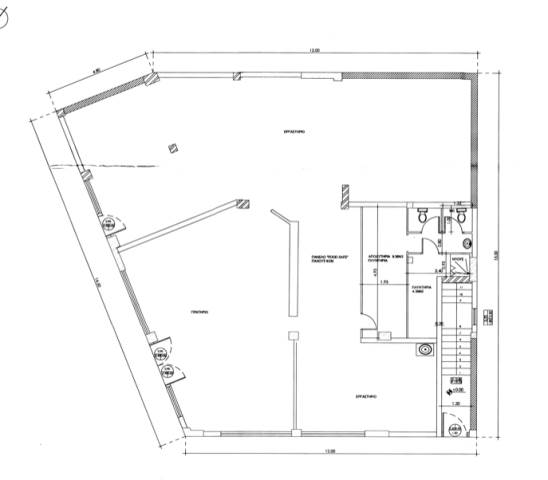
(For Sale) Commercial Small Industrial Area || Athens South/Tavros - 210 Sq.m, 330.000€
Code:
Features
Sq.m
210 Sq.m
WC
Offices
1
Floor
Ground floor
WC
1
Parkings
Category
Commercial
Building Year
1962
Price/Sq.m
1,571€
Status
Refurbished
In plot/With garden (Sq.m)
240
View
Parkings
Heating
Levels
1
Code
46453
e-agents
1885045
Additional Features
On Corner
Bright
Description
For Sale Small Industrial Area, Tavros 210sq.m ,Ground floor , 1 rooms ,1 level/s ,1 WC , 1962 built year , Special Features: Ground-floor industrial space, corner unit, with a ceiling height of 4.50 m. It has been structurally reinforced and renovated in 2010. Located on a pedestrian street. It consists of an open-plan area with WC and includes a front setback (yard), as well as three-phase electricity. Ideal for use as storage space, retail shop, gym, bakery, etc., and also suitable for conversion into residential units (appropriate for investment purposes such as Golden Visa schemes). It is located near Pireos Street and the Tavros ISAP station, features: Bright, On Corner
Additional Information
It is not available
Map
Points of Interest
Distance from:
Property's Statistics
Published date:
23 Mar, 2026
Update date:
27 Mar, 2026
Total visitors:
Socialize it
facebook
twitter
google+
pinterest
Socialize it
Print a Brochure
Publish property to facebook
Spread property on twitter
Publish property to google+
Upload property to pinterest
Send to a friend
Please, fill in the form and then Click the Send button. Fields marked with
*
are mandatory fields
*
Required Field
*
Required Field
*
Required Field
Required Field
I agree, this website to keep and use my contact details for future communication
Send it, also, to my e-mail
Type the code
Send
Loan calculator
Fill the rate (without % symbol} and Repayment period in years. If you wish, you can change the amount.
Amount
Rate
(%)
Repayment period
(years)
Monthly installment
Total amount
Total Interest
See also
Tavros
275,000 €
Small Industrial Area For Sale
260 Sq.m
Bedrooms
Rooms
2
Bathrooms
Parkings
Details
I am Interested in this Property
*
Required Field
Required Field
*
Required Field
I Found a property in, RealBrokers, with the following description:(For Sale) Commercial Small Industrial Area || Athens South/Tavros - 210 Sq.m, 330.000€, ID46453, e-agentsID: 1885045 Real Estate Office: RealBrokers and I am, really, interested for it. Please, come in contact with me in order to give me more details.
Required Field
I agree, this website to keep and use my contact details for future communication
Send it, also, to my e-mail
Please, fill in the form and then Click the Send button. Fields marked with
*
are mandatory fields
Type the code
Send
Certificate of Energy Efficiency
Category D
Contact Us
Vasilis Karadimas
(+30) 213 0227019
(+30) 694 1611188
(+30) 211 4114633
info@realbrokers.gr
1 Cheiden str., 10434 Athens
(+30) 213 0227019
(+30) 694 1611188
(+30) 211 4114633
info@realbrokers.gr
Currency
Vasilis Karadimas
(+30) 213 0227019
(+30) 694 1611188
(+30) 211 4114633
info@realbrokers.gr
1 Cheiden str., 10434 Athens
(+30) 213 0227019
(+30) 694 1611188
(+30) 211 4114633
info@realbrokers.gr
(For Sale) Commercial Small Industrial Area || Athens South/Tavros - 210 Sq.m, 330.000€
Features
Building Year:
1962
In plot/With garden (Sq.m):
240
View:
Status:
Refurbished
Parkings:
Heating:
Levels:
1
Area:
Tavros (Mosxato-Tavros)
Subarea:
Category:
Commercial
Type:
Small Industrial Area
Price:
330,000€
Sq.m:
210
Price/Sq.m
1,571€
Offices:
1
Bathrooms:
Floor:
Ground floor
Code:
Additional Features
On Corner
Bright
Description
For Sale Small Industrial Area, Tavros 210sq.m ,Ground floor , 1 rooms ,1 level/s ,1 WC , 1962 built year , Special Features: Ground-floor industrial space, corner unit, with a ceiling height of 4.50 m. It has been structurally reinforced and renovated in 2010. Located on a pedestrian street. It consists of an open-plan area with WC and includes a front setback (yard), as well as three-phase electricity. Ideal for use as storage space, retail shop, gym, bakery, etc., and also suitable for conversion into residential units (appropriate for investment purposes such as Golden Visa schemes). It is located near Pireos Street and the Tavros ISAP station, features: Bright, On Corner
Property's Statistics
Published date:
23 Mar, 2026
Update date:
27 Mar, 2026
Total visitors:
Contact Us Now
(+30) 213 0227019
Ask for a Property
Property Assignment