RealBrokers - Investment & Real Estate 
Γαλάτσι (Δ. Αθηναίων) | | Κτίριο | 15.000€ Κωδικός:

Χαρακτηριστικά

  • Εμβαδόν 1500 τμ.
  •  WC
  •  Γραφεία
  • Όροφος Ισόγειο
  • WC
  • Parkings 12
  • Κατηγορία Επαγγελματικά
  • Έτος Κατασκευής 2000
  • Τιμή/τ.μ. 10€
  • Κατάσταση Ανακαινισμένο
  • Τ.μ. Οικοπέδου
  • Θέα Απεριόριστη
  • Parkings
  • Θέρμανση Αυτόνομη
  • Επίπεδα 3
  • Κωδικός 46524
  • e-agents 1890016

Επιπλέον Χαρακτηριστικά

Προσόψεως Πόρτα Ασφαλείας Συναγερμός Φωτεινό Ράμπα Εκφόρτωσης Ανελκυστήρας Φορτίων
 

Περιγραφή

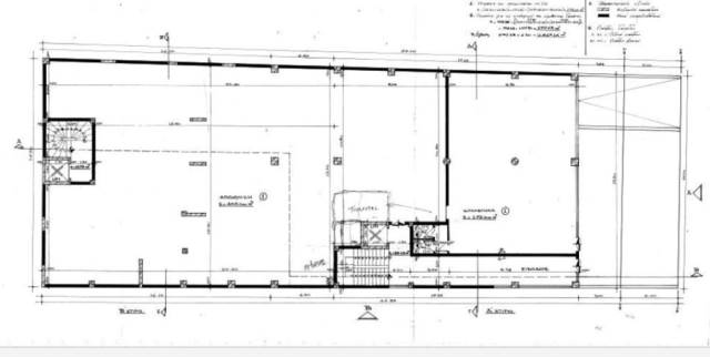
Γαλάτσι, Κτίριο, 1.500 τ.μ, τ.μ. Ισόγειο όροφος, 3 επίπεδο/α, έτος κατασκευής 2000, Δυτικός, Ανακαινισμένο κατάσταση. . Ειδικά χαρακτηριστικά: Περιλαμβάνει ισόγειο 600 τ.μ., 1ο όροφο 600 τ.μ., 2ο όροφο 300 τ.μ. και υπόγειο με 12 θέσεις στάθμευσης. Διαθέτει τριφασικό ρεύμα, ράμπα εκφόρτωσης και ανελκυστήρα φορτίων. Είναι ιδανικό για κάθε επαγγελματική χρήση. Χαρακτηριστικά: Πόρτα Ασφαλείας, Συναγερμός, Ράμπα Εκφόρτωσης, Ανελκυστήρας Φορτίων, Προσόψεως, Φωτεινό, κουφώματα Αλουμινίου, δάπεδα Πλακάκια, Θέρμανση Αυτόνομη - Πετρέλαιο, Parking 12 θέσης/εις . Θέα Απεριόριστη, κοντά σε Πρωτοπαπαδάκη, Γαλατσίου, Ψυχικό, όλες τις συγκοινωνίες.     Κωδικός: 13867       www.realbrokers.gr

Αναλυτική Περιγραφή

Δεν υπάρχει διαθέσιμη

Χάρτης


Σημεία Ενδιαφέροντος

Κοντά σε: Πρωτοπαπαδάκη, Γαλατσίου, Ψυχικό, όλες τις συγκοινωνίες
Απόσταση από:

Στατιστικά Ακινήτου

Δημοσίευση Ακινήτου: 21 Απρ, 2026
Τελευταία ενημέρωση: 21 Απρ, 2026

Socialize it

 
Socialize it Εκτύπωση
Δείτε ακόμα

Γαλάτσι

15.500 €


Κτίριο Προς Ενοικίαση
  • 1050 τμ.
  • Parkings 7
  •  

Με Ενδιαφέρει το ακίνητο

*
*
Συμπληρώστε την φόρμα και πατήστε αποστολή. Τα πεδία με * είναι υποχρεωτικά
Εισάγετε τον κωδικό

Ενεργειακό Πιστοποιητικό

Κατηγορία C

Νόμισμα




213 0227019
694 1611188
211 4114633

info@realbrokers.gr

(Προς Ενοικίαση) Επαγγελματικός Χώρος Κτίριο || Αθήνα Κέντρο/Γαλάτσι - 1.500 τ.μ, 15.000€


Χαρακτηριστικά

Έτος Κατασκευής: 2000 Τ.μ. Οικοπέδου: Θέα: Απεριόριστη Κατάσταση: Ανακαινισμένο Parkings: 12 Θέρμανση: Αυτόνομη Επίπεδα: 3 Κοντά σε: Πρωτοπαπαδάκη, Γαλατσίου, Ψυχικό, όλες τις συγκοινωνίες
Περιοχή: Γαλάτσι (Δ. Αθηναίων) Υποπεριοχή:
Κατηγορία: Επαγγελματικά Τύπος: Κτίριο
Τιμή: 15.000€ Εμβαδόν: 1500
Τιμή/τ.μ. 10€ Γραφεία:
Μπάνια: Όροφος: Ισόγειο
Κωδικός:

Επιπλέον Χαρακτηριστικά

Προσόψεως Πόρτα Ασφαλείας Συναγερμός Φωτεινό Ράμπα Εκφόρτωσης Ανελκυστήρας Φορτίων
 

Περιγραφή

Γαλάτσι, Κτίριο, 1.500 τ.μ, τ.μ. Ισόγειο όροφος, 3 επίπεδο/α, έτος κατασκευής 2000, Δυτικός, Ανακαινισμένο κατάσταση. . Ειδικά χαρακτηριστικά: Περιλαμβάνει ισόγειο 600 τ.μ., 1ο όροφο 600 τ.μ., 2ο όροφο 300 τ.μ. και υπόγειο με 12 θέσεις στάθμευσης. Διαθέτει τριφασικό ρεύμα, ράμπα εκφόρτωσης και ανελκυστήρα φορτίων. Είναι ιδανικό για κάθε επαγγελματική χρήση. Χαρακτηριστικά: Πόρτα Ασφαλείας, Συναγερμός, Ράμπα Εκφόρτωσης, Ανελκυστήρας Φορτίων, Προσόψεως, Φωτεινό, κουφώματα Αλουμινίου, δάπεδα Πλακάκια, Θέρμανση Αυτόνομη - Πετρέλαιο, Parking 12 θέσης/εις . Θέα Απεριόριστη, κοντά σε Πρωτοπαπαδάκη, Γαλατσίου, Ψυχικό, όλες τις συγκοινωνίες.     Κωδικός: 13867       www.realbrokers.gr

Στατιστικά Ακινήτου

Δημοσίευση Ακινήτου: 21 Απρ, 2026
Τελευταία ενημέρωση: 21 Απρ, 2026

Loading...