RealBrokers - Investment & Real Estate
213 0227019
info@realbrokers.gr
GR
GREEK
ENGLISH
Toggle navigation
GR
|
EN
Αγορά 
Κατοικιών
Επαγγελματικών
Οικοπέδων
Διαφόρων Ακινήτων
Ενοικίαση 
Κατοικιών
Επαγγελματικών
Οικοπέδων
Διαφόρων Ακινήτων
Ζήτηση
Ανάθεση
Προφίλ
Υπηρεσίες
Πληροφορίες
Επικοινωνία
Αθήνα (Δ. Αθηναίων)
|
Βοτανικός
|
Οροφοδιαμέρισμα
|
155.000€
(Προς Πώληση) Κατοικία Οροφοδιαμέρισμα || Αθήνα Κέντρο/Αθήνα - 119 τ.μ, 155.000€
Κωδικός:
Χαρακτηριστικά
Εμβαδόν
119 τμ.
Μπάνια
Υ/Δ
Όροφος
1ος
WC
Parkings
Κατηγορία
Κατοικίες
Έτος Κατασκευής
1975
Τιμή/τ.μ.
1.303€
Κατάσταση
Μέτρια
Τ.μ. Οικοπέδου
185
Θέα
Parkings
Θέρμανση
Επίπεδα
1
Κωδικός
46066
e-agents
1847883
Επιπλέον Χαρακτηριστικά
Φωτεινό
Περιγραφή
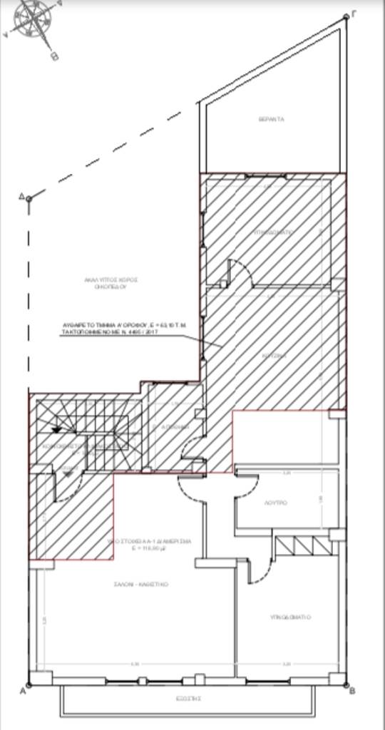
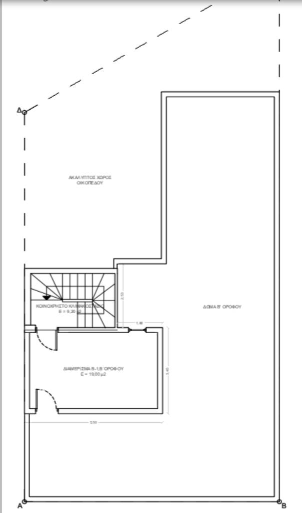
Αθήνα, Βοτανικός, Οροφοδιαμέρισμα, 119 τ.μ, Σε οικόπεδο 185 τ.μ., όροφος 1ος, 1 επίπεδο/α, έτος κατασκευής 1975, κατάσταση Μέτρια. Ειδικά χαρακτηριστικά: Οροφοδιαμέρισμα στον 1ο όροφο διπλοκατοικίας, με δυνατότητα διαχωρισμού σε δύο διαμερίσματα περίπου 60 τ.μ. το καθένα, ιδανικά για εκμετάλλευση. Περιλαμβάνει 50% επί του οικοπέδου, 50% επί του αέρα και 50% επί του δώματος επιφανείας 18 τ.μ. Ο ιδιοκτήτης του ακινήτου αναλαμβάνει, με δικά του έξοδα, την απομάκρυνση των μπαζών από το ακίνητο. Βρίσκεται σε εξαιρετικό σημείο, κοντά στην πλατεία Βοτανικού, την πλατεία Γκαζίου και τον σταθμό μετρό Κεραμεικός. Χωρίς ασανσέρ και κοινόχρηστα. Χαρακτηριστικά: Φωτεινό. Κωδικός: 13419 www.realbrokers.gr
Αναλυτική Περιγραφή
Δεν υπάρχει διαθέσιμη
Χάρτης
Σημεία Ενδιαφέροντος
Κοντά σε:
Απόσταση από:
Στατιστικά Ακινήτου
Δημοσίευση Ακινήτου:
22 Σεπ, 2025
Τελευταία ενημέρωση:
30 Απρ, 2026
Συνολικές επισκέψεις:
Socialize it
facebook
twitter
google+
pinterest
Socialize it
Εκτύπωση
Δημοσιεύστε το ακίνητο στο facebook
Διαδώστε το ακίνητο στο twitter
Δημοσιεύστε το ακίνητο στο google+
Ανεβάστε το ακίνητο στο pinterest
Αποστολή σε Φίλο
Συμπληρώστε την φόρμα και πατήστε αποστολή. Τα πεδία με
*
είναι υποχρεωτικά
*
Υποχρεωτικό πεδίο
*
Υποχρεωτικό πεδίο
*
Υποχρεωτικό πεδίο
Υποχρεωτικό πεδίο
Δέχομαι η συγκεκριμένη ιστοσελίδα να χρησιμοποιήσει τα στοιχεία μου για μελλοντική επικοινωνία
Αποστολή και στο e-mail μου
Εισάγετε τον κωδικό
Αποστολή
Υπολογισμός Δανείου
Συμπληρώστε το Επιτόκιο (χωρίς το σύμβολο %} και τη Διάρκεια αποπληρωμής σε έτη. Αν επιθυμείτε μπορείτε να αλλάξετε και το ποσό
Ποσό
Επιτόκιο
(%)
Διάρκεια αποπληρωμής
(έτη)
Μηνιαία Δόση
Συνολικό ποσό που θα πληρώσετε
Συνολικός Τόκος
Με Ενδιαφέρει το ακίνητο
*
Υποχρεωτικό πεδίο
Υποχρεωτικό πεδίο
*
Υποχρεωτικό πεδίο
Κατά την επίσκεψή μου στην ιστοσελίδα αγγελιών ακινήτων, RealBrokers, εντόπισα το ακίνητο με περιγραφή:(Προς Πώληση) Κατοικία Οροφοδιαμέρισμα || Αθήνα Κέντρο/Αθήνα - 119 τ.μ, 155.000€, Κωδ.46066, e-agentsID: 1847883 Μεσιτικό Γραφείο: RealBrokers και επιθυμώ να επικοινωνήσετε μαζί μου
Υποχρεωτικό πεδίο
Δέχομαι η συγκεκριμένη ιστοσελίδα να χρησιμοποιήσει τα στοιχεία μου για μελλοντική επικοινωνία
Αποστολή και στο e-mail μου
Συμπληρώστε την φόρμα και πατήστε αποστολή. Τα πεδία με
*
είναι υποχρεωτικά
Εισάγετε τον κωδικό
Αποστολή
Ενεργειακό Πιστοποιητικό
Κατηγορία G
Επικοινωνία
Βασίλης Καραδήμας
213 0227019
694 1611188
211 4114633
info@realbrokers.gr
Χέυδεν 1, 10434 Αθήνα
213 0227019
694 1611188
211 4114633
info@realbrokers.gr
Νόμισμα
Βασίλης Καραδήμας
213 0227019
694 1611188
211 4114633
info@realbrokers.gr
Χέυδεν 1, 10434 Αθήνα
213 0227019
694 1611188
211 4114633
info@realbrokers.gr
(Προς Πώληση) Κατοικία Οροφοδιαμέρισμα || Αθήνα Κέντρο/Αθήνα - 119 τ.μ, 155.000€
Χαρακτηριστικά
Έτος Κατασκευής:
1975
Τ.μ. Οικοπέδου:
185
Θέα:
Κατάσταση:
Μέτρια
Parkings:
Θέρμανση:
Επίπεδα:
1
Κοντά σε:
Περιοχή:
Αθήνα (Δ. Αθηναίων)
Υποπεριοχή:
Βοτανικός
Κατηγορία:
Κατοικίες
Τύπος:
Οροφοδιαμέρισμα
Τιμή:
155.000€
Εμβαδόν:
119
Τιμή/τ.μ.
1.303€
Υ/Δ:
Μπάνια:
Όροφος:
1ος
Κωδικός:
Επιπλέον Χαρακτηριστικά
Φωτεινό
Περιγραφή
Αθήνα, Βοτανικός, Οροφοδιαμέρισμα, 119 τ.μ, Σε οικόπεδο 185 τ.μ., όροφος 1ος, 1 επίπεδο/α, έτος κατασκευής 1975, κατάσταση Μέτρια. Ειδικά χαρακτηριστικά: Οροφοδιαμέρισμα στον 1ο όροφο διπλοκατοικίας, με δυνατότητα διαχωρισμού σε δύο διαμερίσματα περίπου 60 τ.μ. το καθένα, ιδανικά για εκμετάλλευση. Περιλαμβάνει 50% επί του οικοπέδου, 50% επί του αέρα και 50% επί του δώματος επιφανείας 18 τ.μ. Ο ιδιοκτήτης του ακινήτου αναλαμβάνει, με δικά του έξοδα, την απομάκρυνση των μπαζών από το ακίνητο. Βρίσκεται σε εξαιρετικό σημείο, κοντά στην πλατεία Βοτανικού, την πλατεία Γκαζίου και τον σταθμό μετρό Κεραμεικός. Χωρίς ασανσέρ και κοινόχρηστα. Χαρακτηριστικά: Φωτεινό. Κωδικός: 13419 www.realbrokers.gr
Στατιστικά Ακινήτου
Δημοσίευση Ακινήτου:
22 Σεπ, 2025
Τελευταία ενημέρωση:
30 Απρ, 2026
Συνολικές επισκέψεις:
Άμεση Επικοινωνία
213 0227019
Ζήτηση Ακινήτου
Ανάθεση Ακινήτου